Sunny 1-Bedroom Apartment with Open Views in beautiful El Paraíso
The apartment is part of a community that permits short-term rentals, making it equally suitable as a holiday home, permanent residence or investment. Residents have access to a pool area, as well as the comfort of underground parking and private storage rooms.
This charming apartment is a great opportunity in one of the most established areas of the Costa del Sol. Situated right next to El Paraíso Golf, it enjoys a peaceful setting with beautiful surroundings, while being only a short drive to all daily amenities, shops and restaurants.
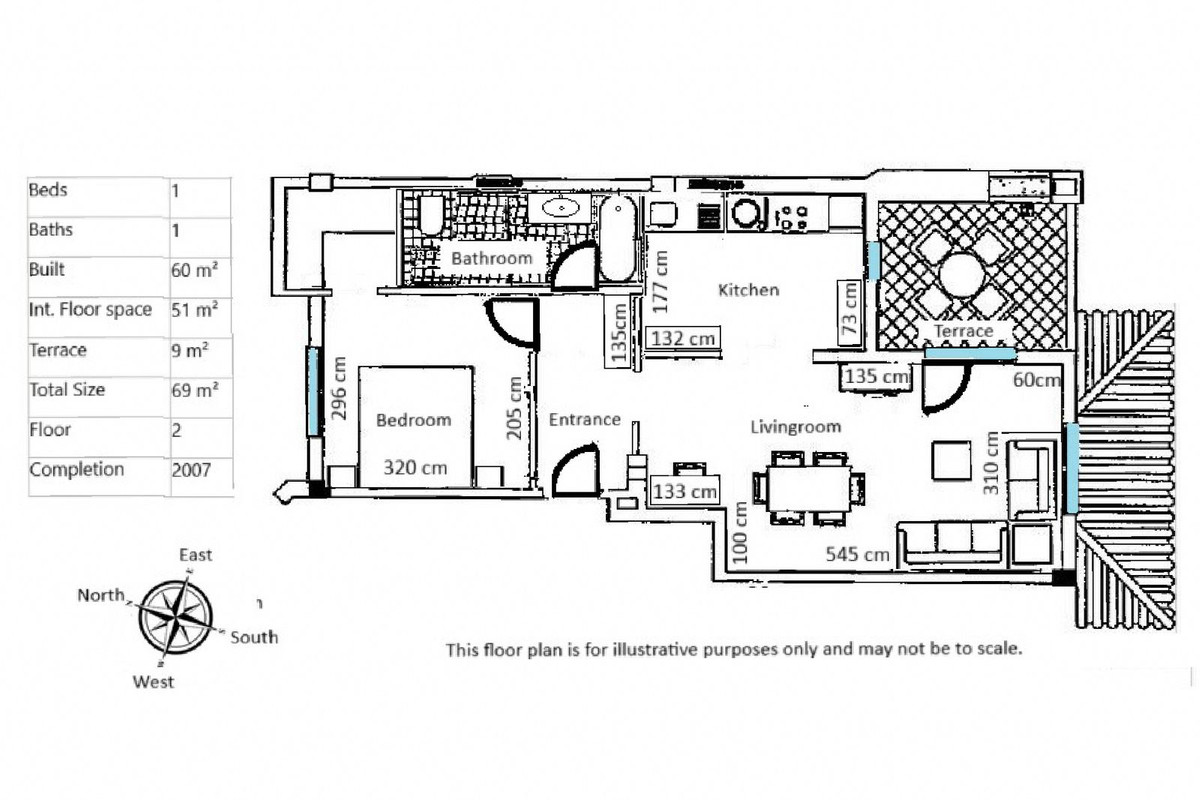
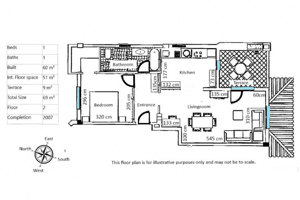
The property is fully furnished and move-in ready, offering one bedroom and one bathroom with a practical layout. The highlight is the south-facing terrace, where you can relax and take in the open views over the golf course, along with small sea views and the backdrop of La Concha mountain.
Its location ensures excellent connections: just 3 km from the sea, 10 km from Puerto Banús, and 70 km (50 minutes) from Málaga Airport. With amenities close by and the coast within easy reach, the property combines convenience with a tranquil golf-side setting.







































