UNIQUE LOCATION- EXCELLENT INVESTMENT
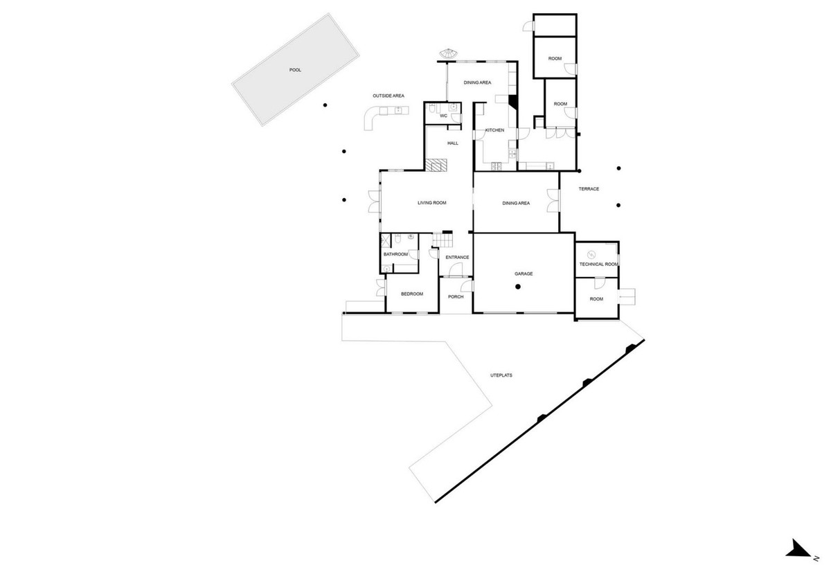
Extraordinary villa with a unique location on the golf course in Guadalmina Baja, just 200 meters from the sea! This fantastic property boasts four bedrooms, each with its own en-suite bathroom. The master bedroom stands out with its spacious layout, featuring a cozy fireplace, walk-in closet, and a sizable terrace overlooking the meticulously maintained garden. Enjoy breathtaking views of the golf course and garden from the large windows and French balconies in every bedroom.
The heart of the villa is the living room, characterized by its impressive ceiling height and welcoming fireplace. Natural light floods the space through the expansive windows, offering direct access to the garden. A library located above the living room provides a serene space for reading and relaxation. The dining room is perfect for hosting large gatherings, with direct access to the patio. The well-equipped kitchen boasts ample cooking space, accompanied by a dining area ideal for breakfast.
Indulge in the spa facilities, complete with the option to install a jacuzzi, sauna, and access to the roof terrace. The lower level features a heated saltwater pool with an electric cover, a garden cinema, and a charming lounge area resembling a "tree house."
The garden is a sanctuary of fruit trees, including peach, apricot, fig, orange, grapefruit, lunario lemons, lime, Australian lemon, kumquat, mandarin, and papaya, complemented by an extensive collection of over 15 different rose varieties.
Convenient amenities include a garage for two cars, a driveway with space for eight cars, multiple storage rooms, a boiler room, technical room with an alarm system, and a separate room for pool equipment. The property is heated by solar panels, heat pumps, and gas.
Don't miss this outstanding opportunity to own a truly remarkable villa in Guadalmina Baja, perfectly situated on the golf course.
Easy viewings- Contact for viewing!

























































